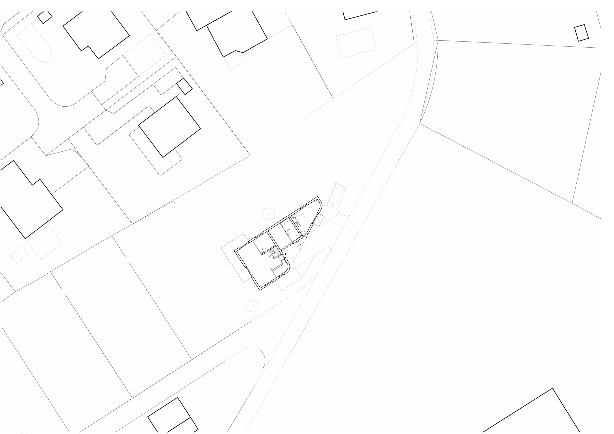
clva | Villas mitoyennes à Prez-vers-Noréaz

Villas mitoyennes à Prez-vers-Noréaz

2018 - en cours
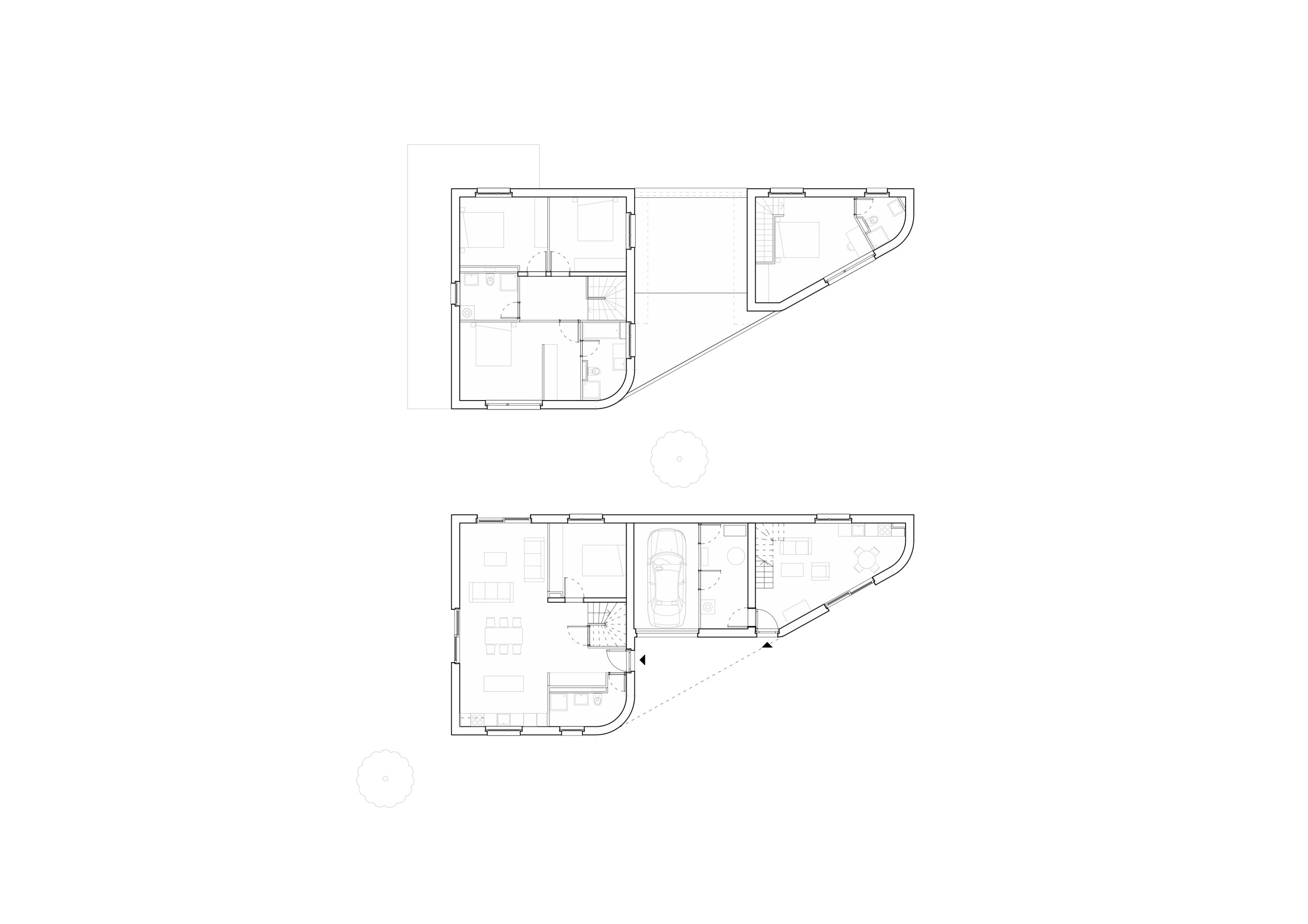
Collaboration sur le projet de villa de 2 logements à Prez-vers-Noréaz
Bureau OWA
Statut : En construction

Élaboration du projet, rendu, mise à l’enquête, détails constructifs